41
$399,900 Sale
Listed 17 hours ago
1750 SUMMIT Drive Unit# 57
· 2
· 1.0
· 1
· 1042
Key Facts
Key facts for 1750 SUMMIT Drive Unit# 57
Property Type
Townhome, Row / Townhouse
Parking
Garage: No, 1 parking
MLS #
10367097
Size
1042 sqft
Basement
-
Listed on
-
Lot size
-
Tax
-
Days on Market
-
Year Built
1985
Maintenance Fee
$399.84/mo
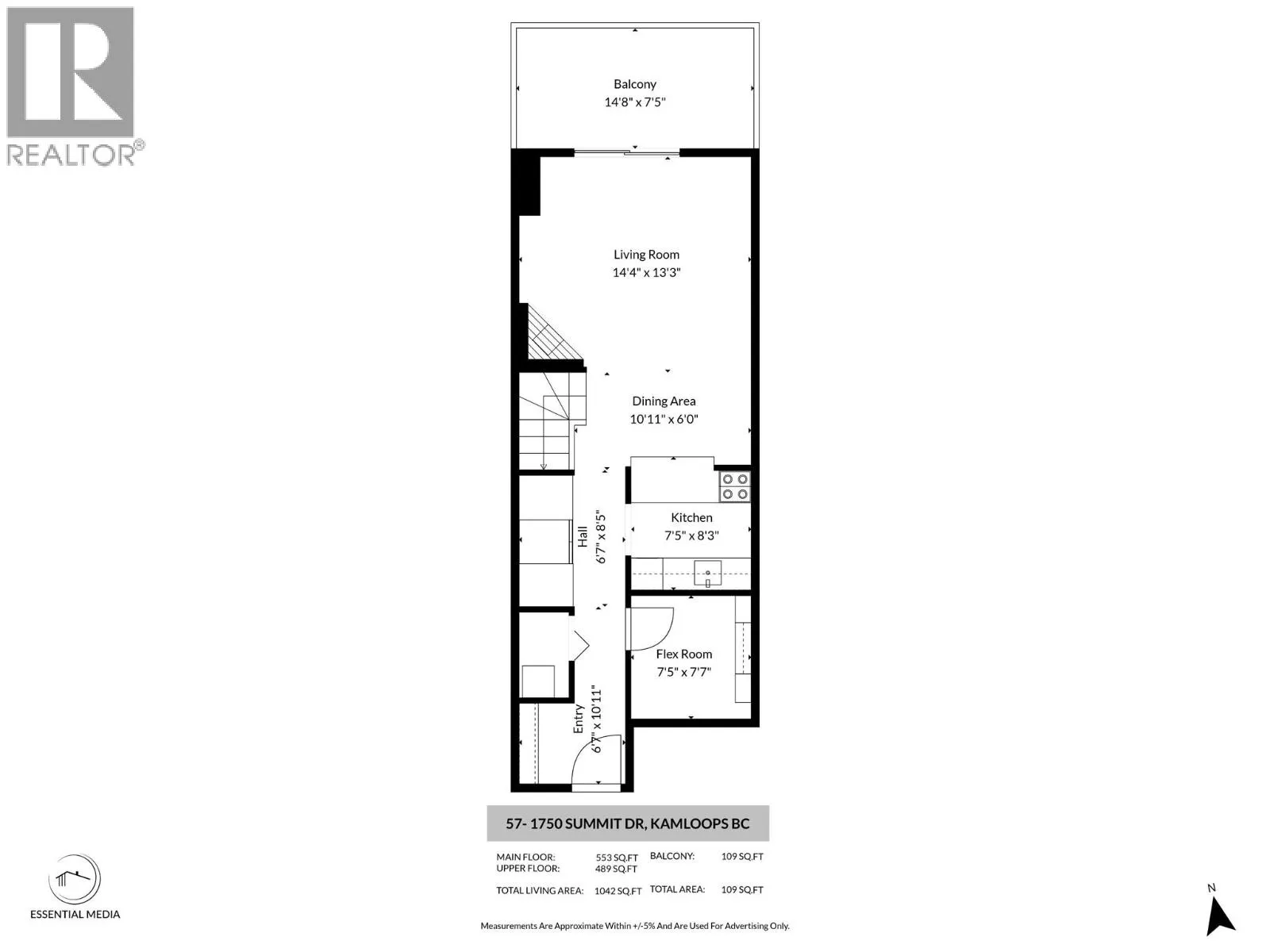
Description
Welcome to Orion Heights! This beautifully updated 2-bedroom home offers a bright, spacious layout with modern finishes throughout. The kitchen showcases sleek quartz countertops and high-end stainless steel appliances, perfect for cooking enthusiasts. Enjoy the thoughtfully designed custom built-in...s that maximize storage, plus a versatile flex space on the main floor perfect for a home office, den, or additional storage. Recent upgrades include a new furnace, A/C, and hot water on demand (2022), ensuring year-round comfort and efficiency. Relax on your balcony and take in the great views, or take advantage of the nearby shopping, restaurants, mall, and transit access. With one dedicated parking stall and ample visitor parking, this move-in ready home is perfect for first-time homebuyers. Call today to book your private showing! All measurements are approximate and should be verified by the buyer if important. (id:10452)
Similar Properties (No results)
Room Types
4pc Bathroom
-
Dimensions 11'6'' x 7'5''
85.29 sqft
Bedroom
-
Dimensions 9'6'' x 11'10''
112.42 sqft
Dining room
-
Dimensions 6'0'' x 10'11''
65.5 sqft
Listing courtesy of: Royal Lepage Westwin Realty
This REALTOR.ca listing content is owned and licensed by REALTOR® members of The Canadian Real Estate Association.